Submit property

The Waterfront, Hertford, Hertfordshire (SSTC)

Price £310,000.00
Bedrooms 2
Bathrooms 2
Reception rooms 1
Parking spaces 1
Gardens 0
Tenure
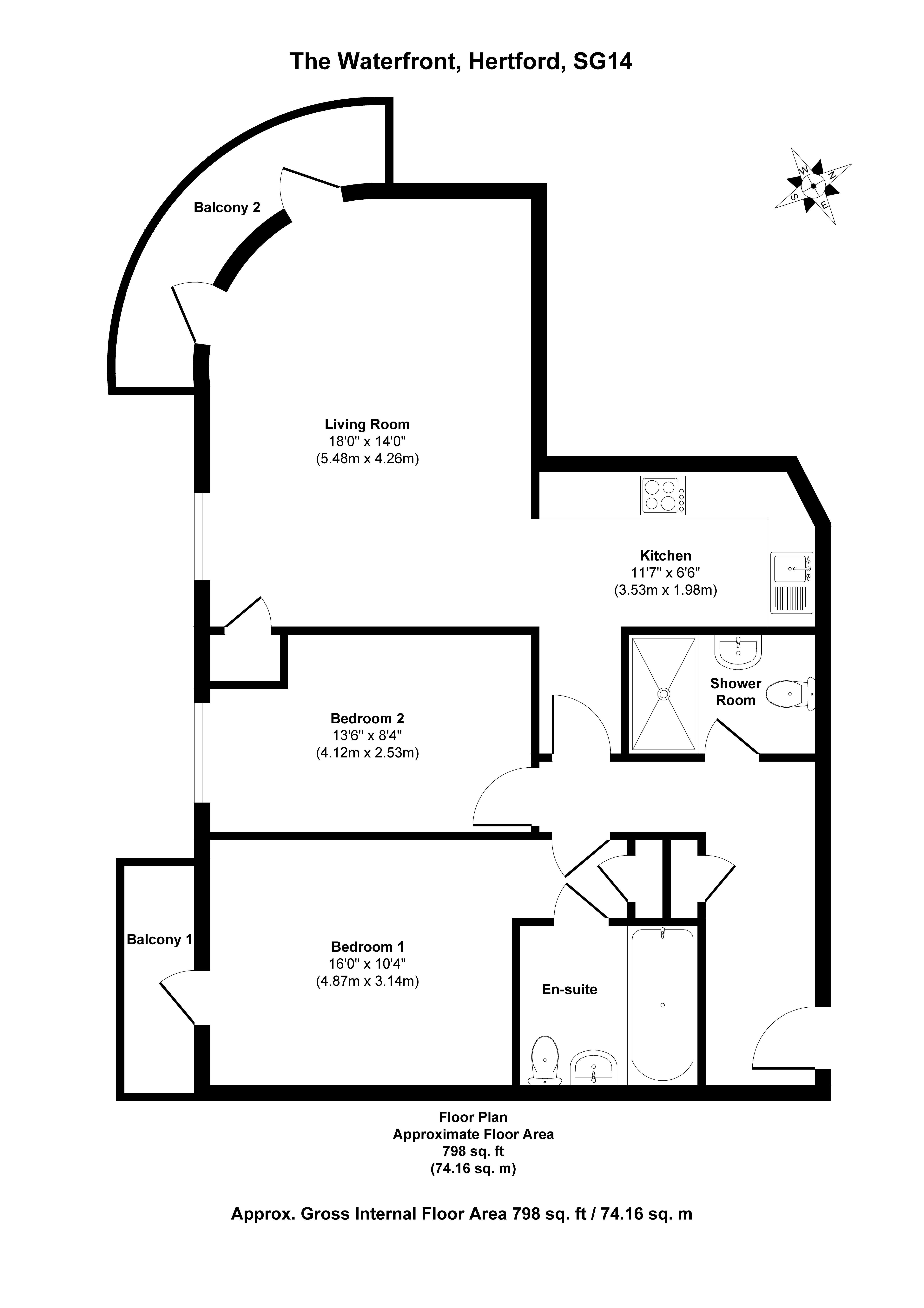
Floor plans
EPC images Link  

PRICED FOR AN IMMEDIATE SALE,

IDEAL INVESTMENT OPPORTUNITY,

CASH BUYERS ONLY,


AWAITING FURTHER IMAGES


Our client has advised that there are 112 years remanin on lease. The service charge is £2256 p.a & ground rent £200 p.a.


New to the market is this stunning 2 double bedroom apartment located on the 3rd floor in the Round Tower, situated on a corner plot within this desirable development. Approx 732 Sq Ft, with direct views of The River Lea, Weir and Hartham Common, it really does have 'the wow factor'!


The property briefly comprises of an entrance hall, lovely bright and spacious lounge with access to wrap around balcony, quality fitted kitchen/diner, ensuite shower room to master bedroom which also has access to a 2nd balcony. Theres also a modern family bathroom.


Further benefits include double glazing, gas central heating, solid doors, video entry and a secure allocated underground parking space for one car, which is conveniently located next the to lift.


The property will be available with no onward chain and as vacant possession., making it, in our opinion a fantastic home or potentially a buy to let for investors.


Please note, the property is currently awaiting EWS1 Certification, therefore, only available to 'Cash Buyers', at present.


The town centre is just a short walk away and offers an array of shops and restaurants,along with excellent links to London's Liverpool Street, Kings Cross and Moorgate Stations.


Contact us to arrange a viewing ASAP to avoid disappointment.


1. MONEY LAUNDERING REGULATIONS - Intending purchasers are required to produce ID documentation pursuant to The Anti Money Laundering Regulations 2007 and Proceeds of Crime Act 2002. We ask for your cooperation to ensure there will be no delay in the progression of the sale. 

2. These conditions do not constitute part or all of an offer or contract.

3. The measurements indicated are supplied for guidance only and as such, must not be considered accurate or precise.

4. Potential buyers are advised to recheck measurements before committing to a sale. 

5. OOA has not tested any apparatus, equipment, fixtures, fittings or services. It is, therefore, the buyer's responsibility to check the working condition of any appliances.

6. OOA is not required to verify the legal title of the property. Buyers are therefore expected to obtain such documentation from their solicitor.


A Buyers Reservation Fee may apply.

Features

2 Double Bedrooms, Ensuite Shower Room to Master bedroom plus Family Bathroom, Quality Fitted Kitchen, Bright & Spacious Lounge, 2 Balconies, Secure Underground Parking, Views of The River Lea Weir & Hartham Common, Walking Distance to Amenities & Transport Links, Vacant Possession, CASH BUYERS ONLY

Add your property